(416) 526 - 4764
info@bestbim.ca
Best
BIM
Building information Modeling
Home
About
Services
BIM
CAD
3D Rendering
Engineering
Cost Estimating
Clash Detection
Projects
News
Contact
Home
About
Services
BIM
CAD
3D Rendering
Engineering
Cost Estimating
Clash Detection
Projects
News
Contact
Home
> Projects
> Shoring Design
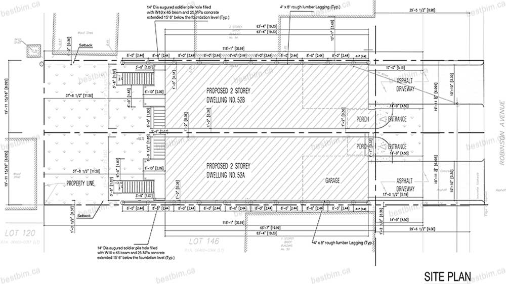
Residential project - Shoring Design
Project type: Shoring Design
Services by Best BIM:
Shoring Design
2D CAD Drawings
Contact Us for Custom Quote
Your file should be less than 10 MB and in JPG, JPEG, PNG, GIF, PDF, or DWG formats
Submit