(416) 526 - 4764
info@bestbim.ca
Best
BIM
Building information Modeling
Home
About
Services
BIM
CAD
3D Rendering
Engineering
Cost Estimating
Clash Detection
Projects
News
Contact
Home
About
Services
BIM
CAD
3D Rendering
Engineering
Cost Estimating
Clash Detection
Projects
News
Contact
Home
> Projects
> School
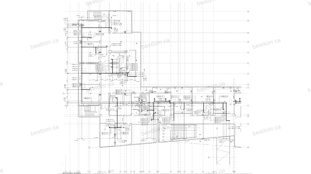
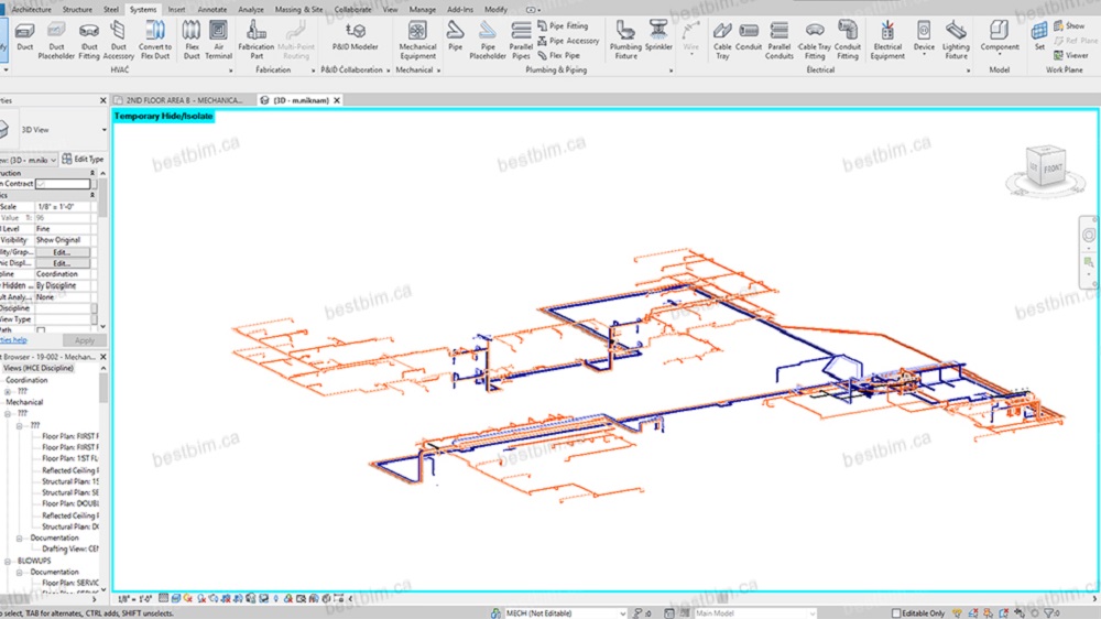
School Project: Clash Detection and Annotation in Revit
Project type: School
Services by Best BIM:
Coordination and clash detection in Revit
Annotation in Revit
Editing plumbing model to remove clashes in Revit
Contact Us for Custom Quote
Your file should be less than 10 MB and in JPG, JPEG, PNG, GIF, PDF, or DWG formats
Submit